Lehrpersonen: Prof. Alexander Schwarz -Elena Masla - Dorothee Riedle
Dass Stuttgart am Neckar liegt, ist aus der Stadt kaum spürbar - in Bad Cannstatt kommt man dem Fluss schon ein wenig näher. Doch auch hier ist dessen einstige Nutzung als reine, industriell geprägte Wasserstraße noch deutlich spürbar, an wenigen Stellen ist der Kontakt des urbanen Raumes zum Wasser mit Gewinn als Landschafts- und Erholungsraum erlebbar. Diesem Defizit soll mit Realisierungs- wettbewerben und Bürgerbeteiligungen im Rahmen des Masterplans „Aufwertung des Neckarknies“ in Zukunft immerhin so weit abgeholfen werden, wie es die kaum zu heilende Belegung weiter Strecken des Ufers mit mehrspurigen überregionalen Verkehrsadern (B10, B14) eben erlaubt.
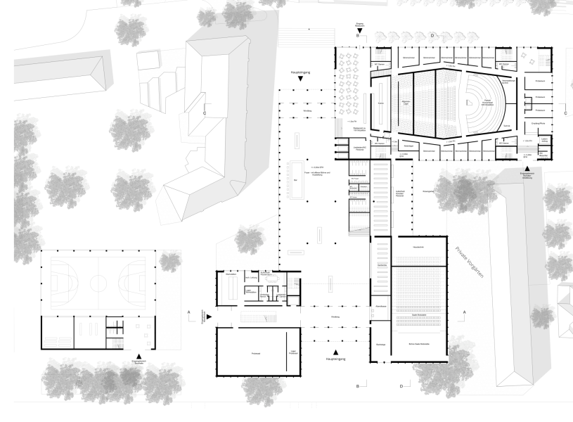
Das ehemalige Stadtbad Cannstatt aus den 60er Jahren besetzt eines der attraktivsten Grundstücke zwischen Kurpark, mittelalterlichem Stadtkern und grünem Neckarufer. Das funktionale Gebäude aus den 1970er Jahren wurde wegen Sanierungsstaus geschlossen und 2022 durch das neue Sportbad „NeckarPark““ ersetzt. Unter möglicher Einbeziehung des Bestandes möchten wir hier einen öffentlichen Stadtbaustein entwerfen, der sich in das heterogene Gefüge von Schulen, Wohnbebauung und Landschaftsräumen einbindet.
Zur Debatte stehen unterschiedliche Raumprogramme, zum einen der lang geforderte Konzertsaal für die Stuttgarter Philharmoniker, zum anderen eine Bildungseinrichtung, jeweils gekoppelt mit einem Begegnungszentrum ganztägiger Nutzung, welche die öffentlichen Räume bespielt. So könnte Cannstatt zeigen, wie Stuttgart seinem Fluss näher kommen kann.
































